案例名称:广州上药云健康综合门诊部装修装饰工程
上传时间:2021-5-21
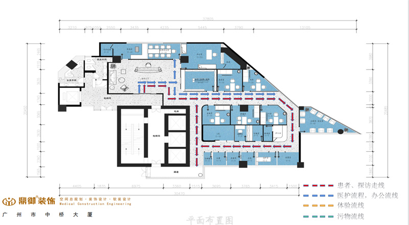
益药上药云健康综合门诊部项目,位于广州越秀区中侨大厦内,在城市繁华地带寸土寸金的写字楼当中,业主提供了弥足珍贵的600平方米设计空间。
对设计师而言,一个好的综合门诊部设计,不但要在场地有限的空间中调谐审美与功能,做到本项目能给来访者留下独特的美的印象,也要解决合理组织多种诊疗功能的难题!
如何在有限空间里塑造独特的诊疗空间气质,让来访者放下就诊的紧张感,留下舒适的回忆呢?
设计师在传统大面积白色色块上,凸显了金色和浅蓝色两种主色调。设计师希望在接待大厅为来访者提供诊疗空间中最为宽敞开阔的区域,简洁不加矫饰的空间内,藏光吊顶的大圆形向上凹入,视觉效果显高。
延续大厅底色,各个科室门都采用了金色做统一装饰,暖调氛围依旧。同时,科室的落地玻璃窗用马赛克状的透明反光膜装饰,作为科技感的延伸,与接待大厅主题相呼应。
——上药云健康综合门诊部装修——



鼎御装饰,精于医院装修,已积累了大量的门诊、医院、医美等设计案例,熟悉医疗行业相关规范,往期项目均一次通过卫健委等各部门验收,欢迎咨询。
广州天使女子会馆装修
日期:2025-07-21 阅读:297
颐美医疗美容诊所装修
日期:2021-04-18 阅读:4542
广州茗丽医美门诊设计
日期:2020-06-06 阅读:2159
焦点口腔诊所设计
日期:2020-05-30 阅读:1350
广州固生堂中医馆装修
日期:2018-02-01 阅读:614