案例名称:谢医生牙科诊所装修装饰工程
上传时间:2021-4-29
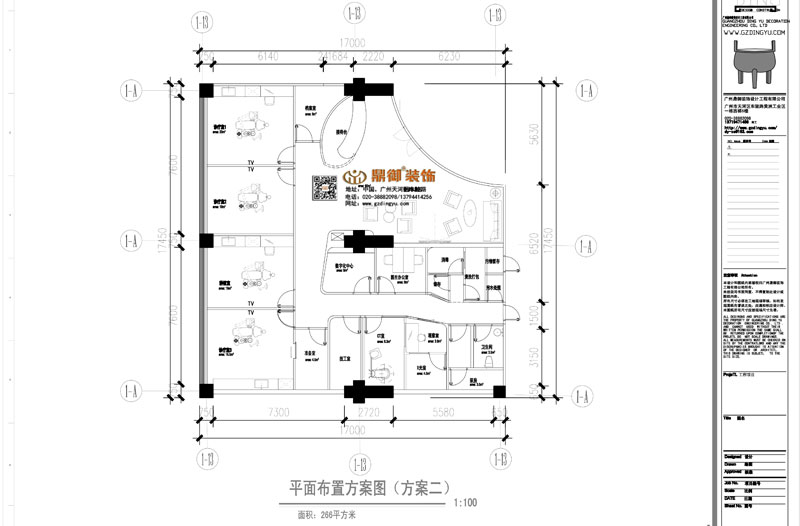
这是广东东莞市寮步镇266平米的谢医生牙科门诊部装修方案,现代简约风格,线条干净,配色独特,质感高级,营造了一个以人为本、清新健康的医疗空间!
谢医生牙科,一家集口腔诊疗,口腔疾病预防、教学、科研于一体的专科口腔门诊。
鼎御设计师,通过对牙齿形态的结构观察,取其曲线元素,融入室内设计,使其空间层次分明,视野开阔,你喜欢吗?
蓝色,是最温暖的!
整体是灰白色背景,蓝色的加入,优雅大方,更添浪漫气质……整个设计,简约而不简单,将严谨的医疗空间,植入了一份轻松的感觉。
——谢医生牙科门诊装修——


深入阅读:广州口腔医院装修
相关图纸,持续更新中,更多牙科诊所、口腔医院装修话题,请关注我们,鼎御装饰,谢谢!
元释堂中医门诊设计
日期:2019-05-13 阅读:645
广州懿美秀整形医院装修
日期:2019-02-13 阅读:2294
亚非牙科门诊装修
日期:2020-02-05 阅读:341
明经堂中医馆设计
日期:2019-05-11 阅读:345
广州鱼美人美容院装修
日期:2019-01-04 阅读:2204